Október 31-én, a reformáció napja alkalmából a főváros legrégebbi református templomát, az óbudait mutatjuk be.
A Kálvin köz 4. szám alatt álló, copf stílusú, egyhajós templom épületének tervezője nem ismert. Alapkőletételére 1785-ben, felszentelésére egy évvel később került sor. Az építkezés közben középkori épületmaradványokat tártak fel, amelyekről bebizonyosodtak, hogy a királyi, majd a királynéi várhoz tartoztak. A templom fokozatosan bővült, a torony megépítését 1788-ban az első, majd a második harang megvásárlása követte, és később orgonát is építettek.
1838-ban, a nagy árvízben egész Óbuda, így a templom is súlyos károkat szenvedett. A templomhoz épült iskolát újra kellett építeni. Érdekesség, hogy a templomban a 19. század közepén evangélikus istentiszteleteket is tartottak.
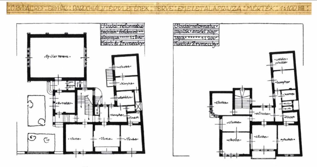
Új parókia és imaház tervezésére kő- és léckerítéssel, kapuval zárt udvarban az óbudai református egyház presbitere Neuschloss Kornél építész, aki fővárosi bizottsági tag is volt, az irodájában nála dolgozó Zrumeczky Dezsőt kérte fel. Zrumeczkynek egyedül nagy munka lett volna, ezért közös munkát ajánlott barátjának, Kós Károlynak. A tervezésre 1908 tavaszán kaptak megbízást és az építkezés ősszel kezdődött. Az épület jellegzetessége a mai is látható, főhomlokzaton kiugró, festett, faszerkezetes erkély. A munka eredményességét bizonyítja, hogy Neuschloss építőbizottsági tagként Kóst és Zrumeczkyt ajánlotta a Fővárosi Állat- és Növénykert tervezésére is. A második világháborúban azonban a Kós–Zrumeczky épületeket átépítették, így azok sajnálatos módon elvesztették eredeti arányaikat, szépségüket. A templom viszont ma is úgy áll, ahogy eredetileg megépült.
Az illusztrációk Budapest Főváros Levéltára által kiadott Fabó Beáta – Anthony Gall: „Napkeletről jöttem nagy palotás rakott városba kerültem”. Kós Károly világa 1907–1914 (Budapest, 2014) című könyvből származnak.
Garami Erika




